Démolition et reconstruction du site de La Forge, Viroflay (78)

Service d’animation des retraités et pôle senior, SSIAD (Service de soins infirmiers et d’aide à domicile), 8 logements (T1 à T4)…

Maîtrise d’Ouvrage Ville de Viroflay
Mission BASE/OPC/SYN | Concours (2022) Lauréat | Avancement ACT | Livraison 2025
Architecte mandataire MAAJ ARCHITECTES
Economiste ADATT | BET Structure Bollinger & Grohmann | Acousticien AVA | BET Fluides / Électricité SOLAB | OPC EFFISEO | Sécurité incendie CSD | Signalétique LOREA
Coût 4 300 000 € HT | Surface 1119 m²

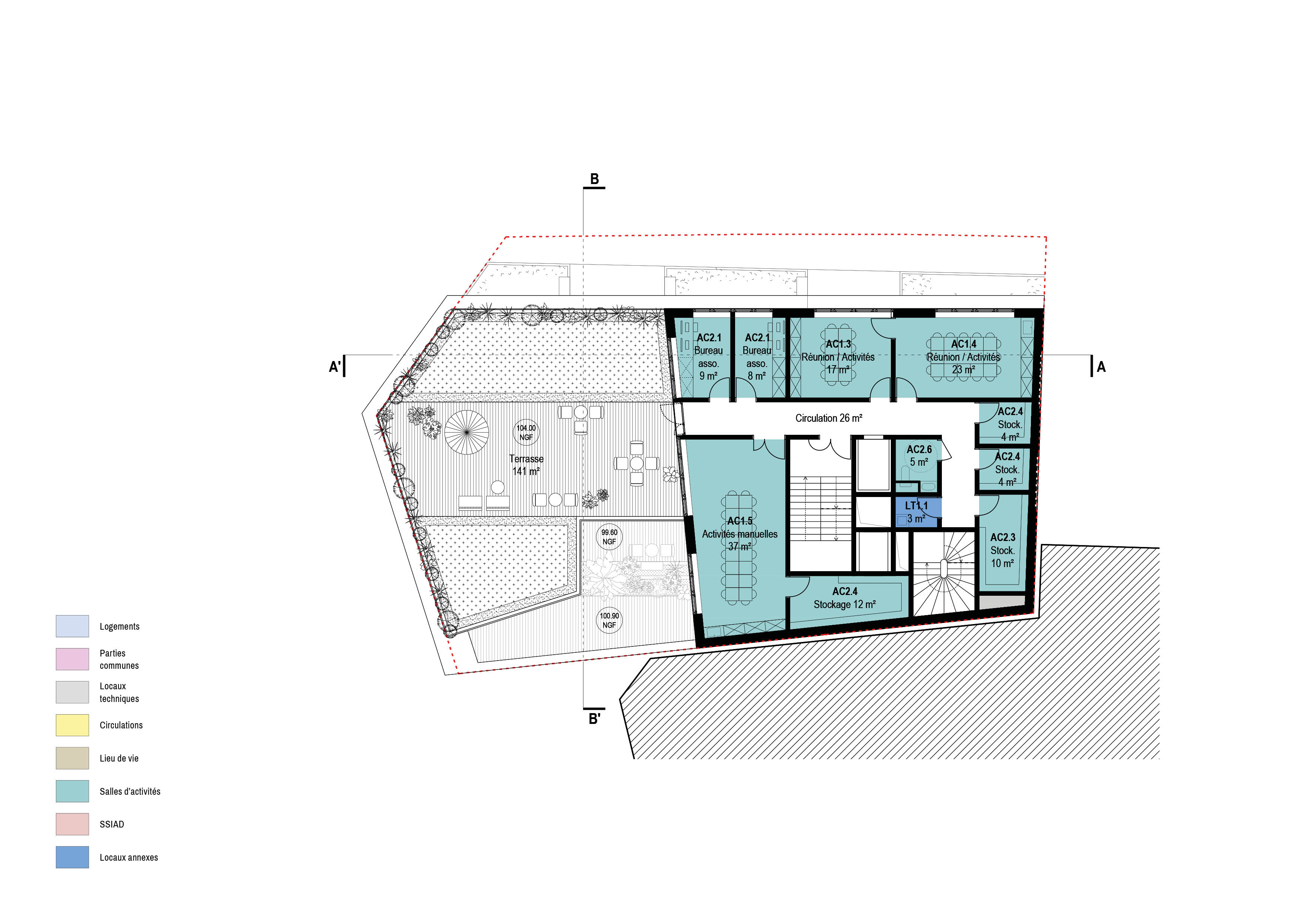
Documents graphiques © MAAJ ARCHITECTES
Perspectives 1 & 2 © lotoarchilab | Perspectives 3 & 4 © MAAJ ARCHITECTES

MIXITÉ

Alliance contemporaine du service à la personne, du pôle d’activités culturelles et du lieu de rencontre et d’entraide, le nouveau site de La Forge est un programme résolument engagé. La mutualisation d’un pôle senior avec des logements en fait un programme mixte répondant aux besoins de densification et de proximité. La déclivité naturelle du site permet de gérer en douceur, le changement d’échelle entre l’équipement public et l’accès résidentiel.

HÉRITAGE

Dans une ville dont le développement est intimement lié à l’histoire de Versailles et son rayonnement architectural, la minéralité fut l’évidence. La présence du viaduc, monument de briques, de moellons et de fonte, soutient ce parti- pris. En réponse à cet objet majeur dans le paysage bâti de la ville, le socle est en pierre de taille tandis que les niveaux s’élèvent en briques de terre cuite beige. Les éléments de serrurerie et de menuiserie tendent vers un vert de gris afin de rappeler la fonte et les éléments d’ornementation des résidences du quartier. La matérialité est solennelle comme un égard à l’histoire et l’utilisation de matériaux nobles participe à la requalification du statut de l’avenue.

ORDONNANCEMENT

La façade est régulière et équilibrée. Le format généreux des ouvertures varie selon l’usage des salles éclairées avec la volonté constante de faire pénétrer le maximum de lumière et de libérer des vues. La brique assure la transition vers les étages des logements. Les deux niveaux de logements et le troisième en attique adoptent une écriture plus ténue et une trame plus dense. Les baies sont plus nombreuses et fonctionnent par paires. Les angles ouverts allègent le bâtiment et libèrent les vues des niveaux supérieurs. Des loggias y prennent place.